Übersicht
Neubau Bernstrasse 8, Schwarzenburg
Neubau in Schwarzenburg
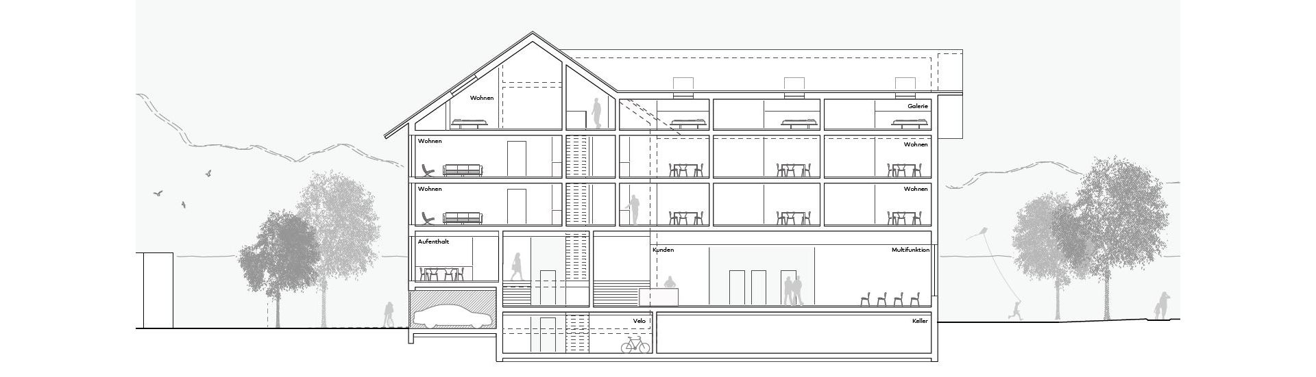
An der Bernstrasse 8 entsteht unsere neue Geschäftsstelle – ein moderner und zukunftsorientierter Neubau, der nicht nur unsere bisherige Geschäftsstelle an der Bahnhofstrasse 10 ablösen wird, sondern mit Wohnungen und einem Multifunktionsraum ergänzt wird. Auf dieser Seite informieren wir Sie laufend über den aktuellen Stand des Projekts, den Baufortschritt, wichtige Termine sowie spannende Einblicke hinter die Kulissen.
Das Projekt
Das Areal «Walki» befindet sich im Dorfzentrum von Schwarzenburg in unmittelbarer Nähe des Bahnhofs und des historischen Dorfkerns. Es umfasst die Parzelle Nr. 3453 an der Bernstrasse Nr. 8 mit einer Fläche von 2'966 m2. Auf dem Areal befindet sich aktuell ein Bauernhaus, welches jedoch nicht mehr zu landwirtschaftlichen Zwecken genutzt wird. Das Areal liegt neben dem Einkaufszentrum von Coop an der Bernstrasse.
Wir haben das Grundstück «Walki» im Frühjahr 2023 käuflich erworben und beabsichtigen auf der Parzelle die neue Geschäftsstelle Schwarzenburg zu realisieren. Zusätzlich zur Geschäftsstelle sollen Wohnungen und ein Multifunktionsraum realisiert werden, welcher den zahlreichen Vereinen sowie auch Privaten zur Nutzung offensteht.
Zeitplan
Der Neubau ist ein mehrjähriges Vorhaben, das sorgfältig geplant und etappiert umgesetzt wird:
| voraussichtlicher Abschluss | Fortschritt |
|---|---|
| Sommer 2025 | Erarbeitung Richtprojekt |
| Dezember 2026 | Erstellung und Genehmigung der Überbauungsordnung |
| ca. 2027 | Baubewilligung |
| ca. 2028 - 2029 | Bauphase |
Was macht das Projekt einzigartig?
Mehrwert für die Gesellschaft
Wohnraum mit Qualität und Charakter