Présentation du chantier de Cernier

Découvrez le projet de votre nouvelle agence

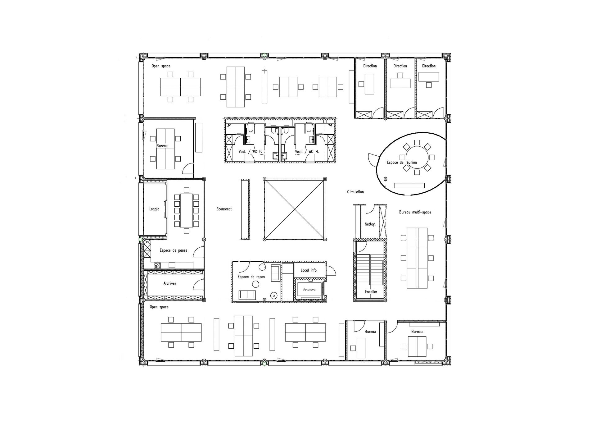
Le projet

Ce nouveau bâtiment abritera un centre de compétences innovant qui permettra de regrouper l’ensemble des agences du Val-de-Ruz, ainsi que l’intégralité des services administratifs de notre établissement. Ce centre de compétences sera un véritable pôle d’excellence, conçu pour offrir des services de haute qualité à notre clientèle et un environnement de travail optimal à nos collaborateurs.

 

L’accueil des clients se fera dans des locaux modernes, faciles d’accès et dotés d’outils digitaux à la pointe de la technologie. Ces installations permettront de répondre efficacement à vos besoins, en vous offrant une expérience fluide et agréable. Les espaces de conseil seront aménagés de manière conviviale et chaleureuse, favorisant les échanges et la satisfaction de notre clientèle.

En plus de proposer des espaces de conseil de qualité, ce centre offrira également un cadre de travail agréable et moderne pour la quarantaine de collaboratrices et collaborateurs de notre établissement qui rejoindront ce site au terme de la construction. Les bureaux seront équipés de technologies avancées et de commodités visant à améliorer le bien-être et la productivité de notre personnel.

 

Ce projet ambitieux reflète notre engagement à innover et à nous adapter aux évolutions du marché, tout en restant fidèles à nos valeurs de service et de proximité. Nous sommes convaincus que ce nouveau centre de compétences sera un atout majeur pour notre établissement et pour l’ensemble de nos clients et collaborateurs.

 

Save the date

Venez découvrir votre nouvelle agence lors de notre journée d'inauguration le samedi 6 juin 2026 de 9h00 à 15h00 ! Les informations détaillées seront communiquées très bientôt.

 

Visite virtuelle des futurs locaux de Cernier

Découvrez en vidéo votre future agence de Cernier ci-dessous ! 

Nous nous réjouissons de vous accueillir dans ces nouveaux locaux dès le lundi 1er juin 2026. 

Pose de la première pierre

La pose de la première pierre s’est tenue le mercredi 23 octobre 2024 en présence du Conseil d’administration & de la Direction de la Banque Raiffeisen Neuchâtel et Vallées, du Conseil communal du Val-de-Ruz et de la presse régionale. Symboliquement, nous avons enterré un tube contenant les plans détaillés du projet, des pièces de monnaie frappées en 2024, ainsi que les statuts de la Banque. Cette pose a marqué une étape importante dans la poursuite du chantier. 

 

 

Val-de-Ruz Expo

Du jeudi 13 au dimanche 16 novembre 2025, nous étions présents à Val-de-Ruz Expo où vous avez pu découvrir votre future agence de Cernier sur notre stand. Grâce à un casque de réalité virtuelle, vous avez pu vous immerger dans les nouveaux bureaux et découvrir nos installations ! Vous avez également eu l’occasion de rencontrer notre équipe dynamique, prête à répondre à toutes vos questions et à vous présenter nos différents services. Nous avons été ravis de partager ce moment convivial et enrichissant avec vous !